Products 製品案内
製品
MENU
MENU
超音波シール機 USW-V3
食品
フードパック
製品の特長
- タッチパネル仕様 (上の動画はボタン式 USW-V2)
- A-PET容器対応
- 両サイドシール
- 毎時5000個

製品概要
USW-V3超音波シール機は、A-PET容器包装に対応した両サイドシール可能モデルです。
タッチパネルによる自動位置合わせ機能を搭載し、毎時5,000個の高速処理を実現。
ステンレス仕様で衛生的かつ長寿命の設計です。
特長
- 直感的な操作
タッチパネルで誰でも簡単に操作可能。
- 品種切り替えの省力化
操作性が高く、作業効率を大幅に向上。
- 簡単&正確な設定
電動メモリでスムーズに調整可能。
- 確実なポイントシール
蓋嵌合トレイを超音波でしっかりシール。
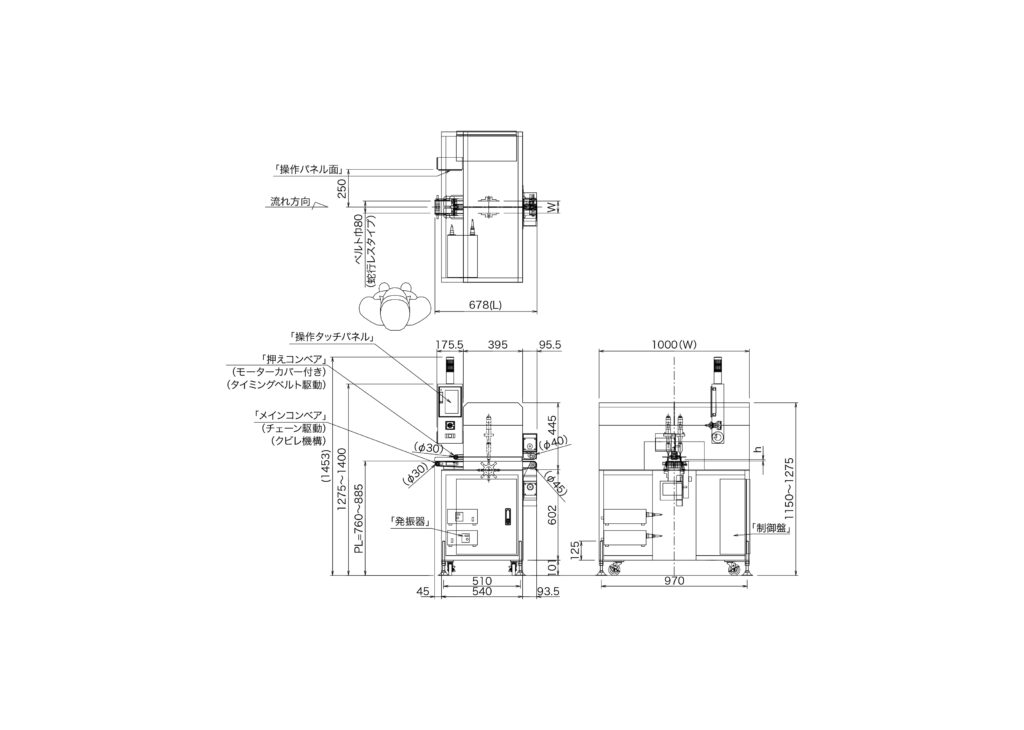
仕様

製品仕様
製品へのお問い合わせ
フォームが表示されるまでしばらくお待ち下さい。
恐れ入りますが、しばらくお待ちいただいてもフォームが表示されない場合は、こちらまでお問い合わせください。

